Sold

Displaying: of 14

Agent Details

Michael Nance

Share

Henry on George

Sold

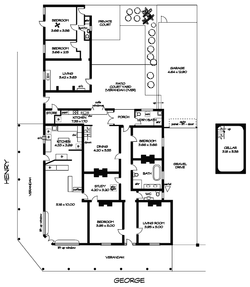
Henry on George Cafe and Henry's BandB, Moonta

1
1
1

Profile

Arguably the best cafe/coffee shop on Yorke Peninsula is now for outright purchase. Consisting of a rustic and historical atmosphere that is hard to emulate and a compact design contributing to the cafe experience. Purpose designed from the ground up the modern functional kitchen enables an easy working space for volume and effiency. The cafe currently operates with an internal seating capacity for 35 and is linked through opening breakfast bar windows to the alfresco seating of 50. The figures are outstanding with exceptional growth and the ease of operation of this business make it an outstanding opportunity for the new owners.

This business is being auctioned with the freehold premises which comprise of the coffee shop, fully furnished 2 bedroom Bed and Breakfast and a stunningly restored 3 bedroom residence with den, exquisite outdoor entertainment area and large shedding for land and sea vehicles.

Please also check out the following websites http://www.realestate.com.au/cgi-bin/rsearch?a=o&id=106230396&f=0&p=10&t=res&ty=&fmt=&header=&cc=&c=91031235&s=sa&tm=1261624044
http://www.realestate.com.au/cgi-bin/rsearch?a=o&id=106230437&f=0&p=10&t=res&ty=&fmt=&header=&cc=&c=50070221&s=sa&tm=1261624311

Features

1
Bedrooms
1
Bathrooms
1
Garage
0 sqm approx.
Land Size

Send Enquiry

Your Details
Your Enquiry
  1. Please describe how we can be of assistance to you.

  2.  

    Would you like to join our mail list?

Submit