Displaying: of 1

Agent Details

Michael Nance

Share

'River Lady' Commercial Vessel

$399,500 Reduced for Genuine Sale

- 'River Lady' Commercial Vessel, Mannum

8
5

Profile

The opportunity that comes with the purchase of a houseboat like River Lady doesn't come around very often... But here it is, and what an opportunity!

Operating as River Lady Eco Cruises for the past 14 years, from the beautiful Murray River town of Renmark, this commercial vessel in class 1E survey offers the purchaser the chance to continue and further grow and develop an already successful houseboat river cruise business. You could make this substantial vessel your home and combine business with pleasure or just make her yours to share with family and friends.The possibilities are truly endless.

As an ongoing business proposal, the spacious River Lady is licensed to carry 40 passengers for day cruises, can accommodate up to 18 people for sleeping for the overnight and longer cruises. The vessel also has a liquor licence.

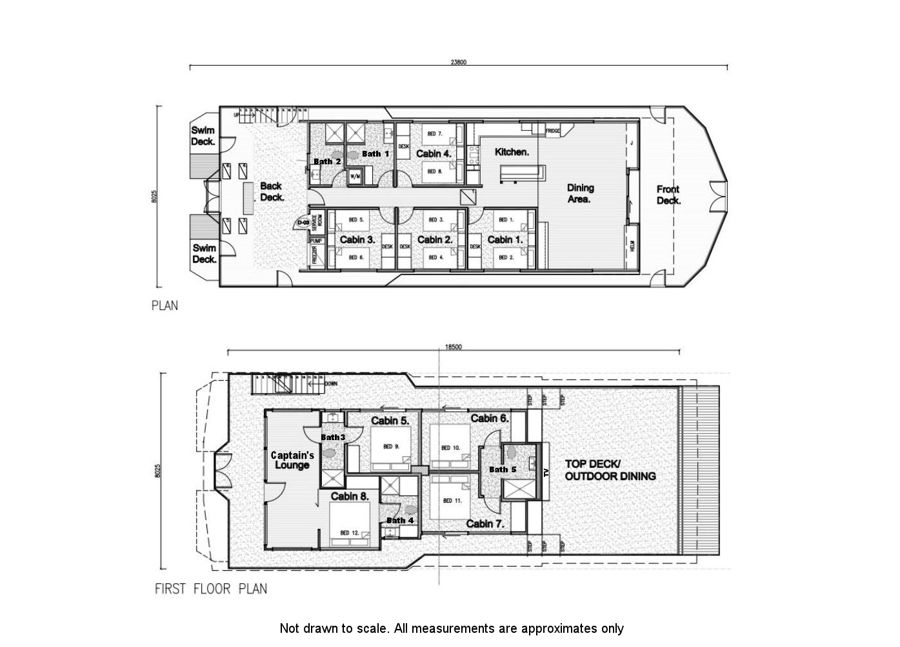
Sleeping quarters are found on both the upper and lower levels with 4 cabins and 2 bathrooms (laundry in one) on the lower level and 4 cabins and 3 bathrooms on the upper level. There is also the 'Captain's Lounge' which can be utilised as a lounge space or can be configured to provide further sleeping options. Refrigerated split system air-conditioning is provided for both the lower and upper levels.

A modern L-shaped kitchen with freestanding island cabinet, fantastic overhead and underbench storage, large full sized stove, dishwasher and microwave oven complete this area. A large separate forward positioned lower level dining area provides your guests with plenty of room for inside dining.

Let's talk all things entertainment! With fully covered deck areas, River Lady offers a fantastic upper level deck where the space can be utilised for alfresco dining or purely relaxing with a glass of wine in hand and taking in the glorious river views, day or night from the best vantage point on the boat!
An enclosed flat screen TV and DVD player also add another entertainment element on offer to this upper deck alfresco space.
The lower level offers a spacious back deck, 2 swim decks plus large swim cage, complimented by the front deck with barbecue.

Your guests will be captivated by the beauty of the mighty Murray River whilst wining, dining and socialising.

River Lady specifications:
- Fully surveyed 1E commercial vessel
- Approx 23.8 meters x 8 meters
- Last slipped March 2021
- Covered upper and lower level decks
- Steel pontoons
- Grey water and black water compliant
- Gas & electricity compliant
- 7 solar panels and 14 batteries - set up to run on shore power, solar power or generator
- 6.5 kva Honda petrol generator
- 440 litre aluminium fuel tank
- 2 Yamaha 60HP motors (almost new with just 200 engine hours)
- 2 x in pontoon Bow thrusters
- 4 large spotlights for night time cruising
- 800 litre rainwater storage tank
- Split system airconditioning on both levels
- Offered on a walkin/walkout basis with all furniture, electrical items, linen, crockery. Cutlery etc included in the purchase
-

River Lady is a very special offering as an on-going commercial business opportunity.
Full details with regards to the business and further information regarding the specifications of this vessel are available to interested parties.

For all inquiries contact Michael Nance on 0428 294141.


Disclaimer: Statewide Marine, the agent, has not independently checked any of the information contained herein and accepts no responsibility and gives no warranty as to the accuracy of information as provided by the seller and represented in this material. Prospective purchasers must rely on their own enquiries and should satisfy themselves as to the accuracy of all information given by their own inspections, searches, enquiries, advice or as otherwise necessary.

Features

8
Bedrooms
5
Bathrooms

Send Enquiry

Your Details
Your Enquiry
  1. Please describe how we can be of assistance to you.

  2.  

    Would you like to join our mail list?

Submit