Sold

Displaying: of 28

Agent Details

Michael Nance

Share

Absolute Beach Frontage With Sea Views, Set In A Quiet Location

Sold

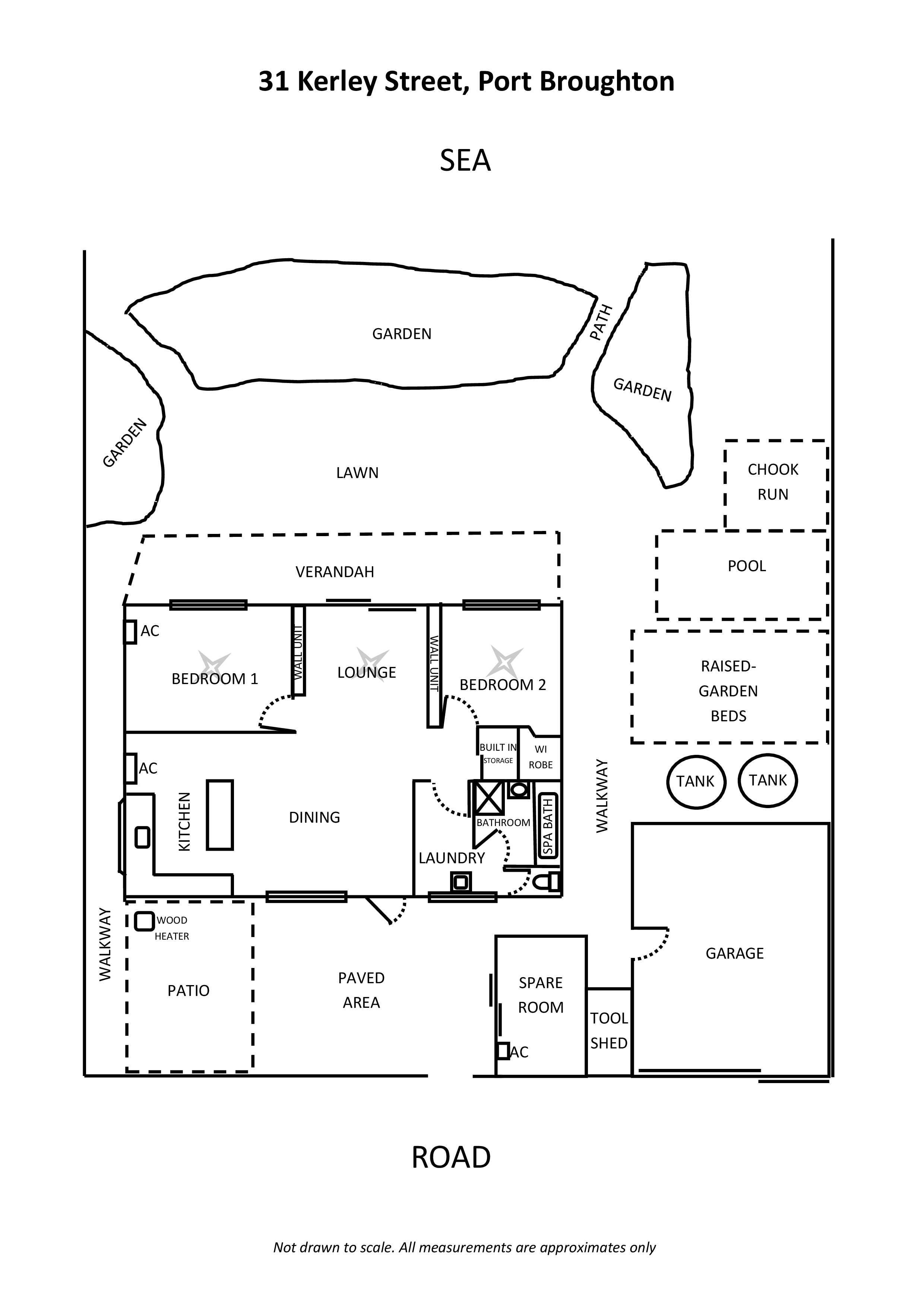
31 Kerley Street, Port Broughton

2
1
1

Profile

Indulge in relaxation on the verandah of this home, surrounded by serenity and breathtaking ocean views and sunsets. The absence of neighbours on either side will allow you to truly unwind and immerse yourself in your seaside surroundings.

Inside, this home boasts two comfortable bedrooms plus an inviting open plan kitchen, dining and lounge area. The bathroom is complete with a separate shower and a spa bath and for added convenience, there's a separate toilet and a laundry area with built in storage cupboards.

A highlight of this property is its versatile freestanding spare room, offering endless possibilities. Whether you need an extra bedroom, an office/study, or a hobby room, this space can easily adapt to your needs and desires.

To fully embrace the awe-inspiring sea views, step onto the sea-facing undercover verandah, complete with concrete floor and blinds. Additionally, there's a charming patio area (facing the roadside) measuring 6m x 3.5m*. Imagine enjoying cozy evenings by the wood heater, surrounded by the warmth and comfort of this inviting space.

For storage for vehicles or a boat, the property offers a spacious 12m x 5m* garage with paved floor and complete with power.

The beauty of nature is brought to life in the established front and rear gardens, with native scrub and lawned area. Best of all, you have your very own walkway leading from your yard directly to the beach, allowing you easy access whenever your heart desires.

This property also offers a range of desirable features to enhance your lifestyle, including a fully fenced above ground pool with shelter and a 1.4kw solar panel system to help save on energy costs. The 2 x 5000L (approx) rainwater tanks provide a sustainable water source, and the presence of fruit trees adds a delightful touch to the landscape. Additionally, there's a dedicated chook run, perfect for those who appreciate fresh eggs straight from their own backyard.

What you will love about this home:
- Absolute beach front, offering magnificent views and a direct-access walkway from
your yard to the beach.
- Bedrooms 1 and 2 with 2.5m windows and offering sea views, queen sized beds,
airconditioner and ceiling fan to both and bedroom 2 with walk in robe with inbuilt storage.
- Kitchen with bay window, breakfast bar, near new dishwasher, induction cooktop,
wall oven and double sink.
- Lounge with 3.6m aluminium window and sliding doors to take advantage of the views,
large wall unit and ceiling fan.
- Versatile, freestanding additional room, fully lined and with sliding door access
- Fully fenced above ground pool with shelter
- 1.4kw solar panel system, 2 x 5000L* rainwater tanks
- Established lawn and gardens with fruit trees & chook run
- Spacious garage plus tool shed

Don't miss out on this incredible opportunity to embrace coastal living!
Immerse yourself in tranquility and the natural beauty that surrounds this well presented, light and airy property offering the very best of sea views!
With summer just around the corner, make this your get-away home.

For all enquiries, contact Barry Gent on 0427390520.


CT / 5863/791
Council / District Council of Barunga West
Land / 473 sqm approx
Council Rates / TBC
SA Water / TBC

*denotes approximate value.


All information provided has been obtained from sources we believe to be accurate, however, we cannot guarantee the information is accurate and we accept no liability for any errors or omissions (including but not limited to a property's land size, floor plans and size, building age and condition). Interested parties should make their own enquiries and obtain their own legal advice.

RLA 264895

Features

2
Bedrooms
1
Bathrooms
1
Garage
473 sqm approx.
Land Size

Send Enquiry

Your Details
Your Enquiry
  1. Please describe how we can be of assistance to you.

  2.  

    Would you like to join our mail list?

Submit